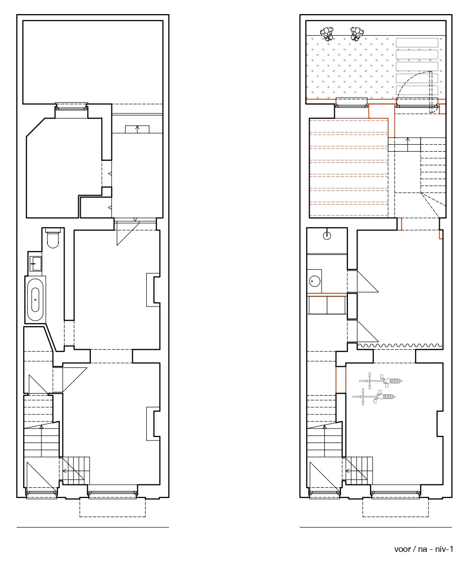
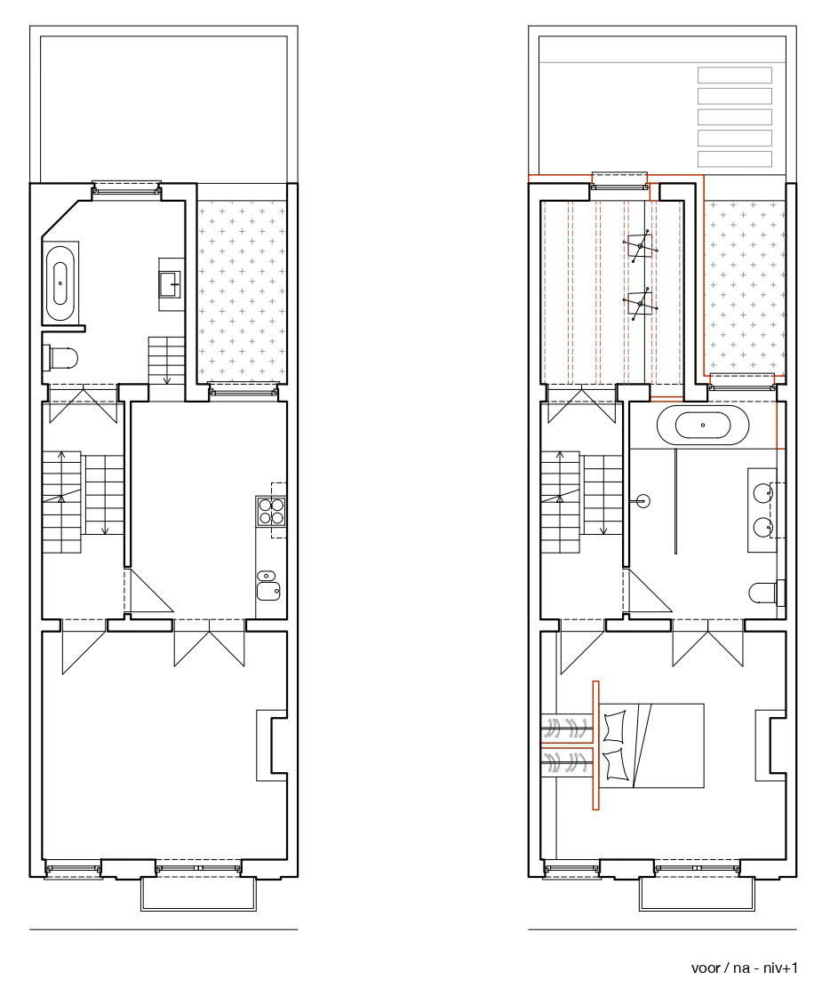
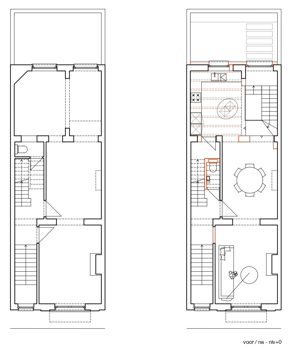
Een gefragmenteerde eengezinswoning in gesloten bebouwing wordt intern herwerkt en opnieuw als één geheel georganiseerd. De bestaande volumes aan de tuinzijde vragen een structurele aanpak, waarbij de vernieuwde vloerbalken zichtbaar blijven en het interieur mee vormgeven. Een nieuwe vide, trap en een verticale raampartij met pivotdeur vormen samen de centrale ingreep. Over een hoogte van bijna 6 meter verbinden ze de leefverdieping met het souterrain en de stadstuin, en brengen ze licht en lucht diep in de woning. De ruimtes in het hoofdvolume behouden hun oorspronkelijke kwaliteiten, met aandacht voor de karakteristieke elementen van het Brusselse herenhuis. Op de eerste verdieping wordt een gezinsbadkamer gekoppeld aan een ruime slaapkamer voor de ouders. De ingrepen zijn strategisch gekozen binnen het bestaande volume, met aandacht voor het bouwbudget en energetisch comfort.