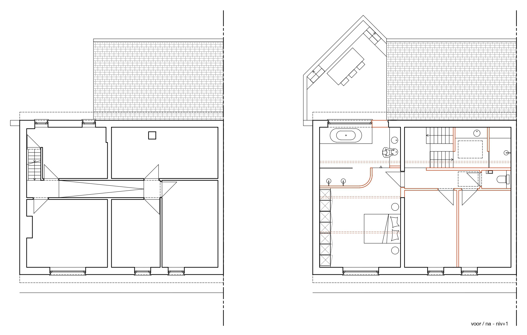
Het bestaande volume wordt volledig teruggebracht tot een lege doos. In de donkerste zone van de woning wordt de circulatie hertekend met een nieuwe trap, tussenniveaus en een daklicht. De voordeur schuift op en legt een duidelijke as naar de traphal, die de leefruimtes en het bijgebouw verbindt. Aan de voorgevel wordt een raamopening doorgetrokken tot op de grond. Een houten bekleding, op de plaats van de vroegere voordeur, markeert samen met de nieuwe voordeur de toegang. De woning keert zich niet langer naar binnen. Een opening in de zijgevel brengt zonlicht en zicht op de velden. Aan de tuinzijde zorgen een uitgegraven terras en een plafondhoog schuifraam voor een directe relatie met buiten. Op de verdieping vormt de master suite het pronkstuk, open tot in de nok, met badkamer en zicht op het landschap.