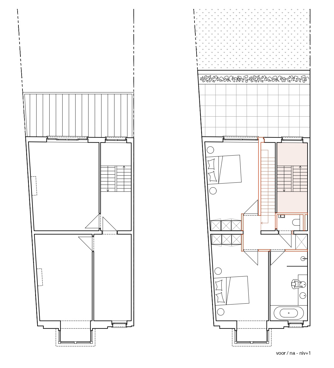
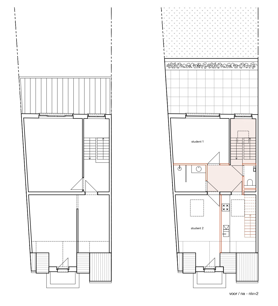
Een statige eengezinswoning wordt opgedeeld in een triplexwoning en een duplex met studentenkamers. Het bestaande volume blijft grotendeels behouden, met een uitbreiding aan de tuinzijde. De traphal blijft behouden als gemeenschappelijke circulatie, terwijl de triplex wordt georganiseerd rond twee interne trappen. De lager gelegen tuinverdieping wordt ingericht als leefruimte. Een nieuwe aanbouw vervangt de veranda en opent zich met een grote raampartij naar de tuin. Het dak wordt ingericht als terras, waardoor ook het gelijkvloers rechtstreeks aansluit op buiten. Onder het hellend dak worden twee studentenkamers en gedeelde voorzieningen ingericht. Aan de voorzijde openen een kamer en de keuken zich tot in de nok. Vanuit de keuken is er toegang tot een extra verdiepje met een inpandig dakterras. De voorgevel, opgenomen in de erfgoedinventaris wordt zorgvuldig gerestaureerd en voorzien van houten schrijnwerk. Achteraan wordt de gevel gekaleid en voorzien van nieuw aluminium schrijnwerk. De aanbouw sluit hierop aan met een strakke aluminium gevelafwerking. Zo krijgt een ruim herenhuis tegenover het station een nieuwe invulling.