BLIK architecte(n)
projecten
werkwijze
BLIK architecte(n)
projecten
werkwijze

PAUL

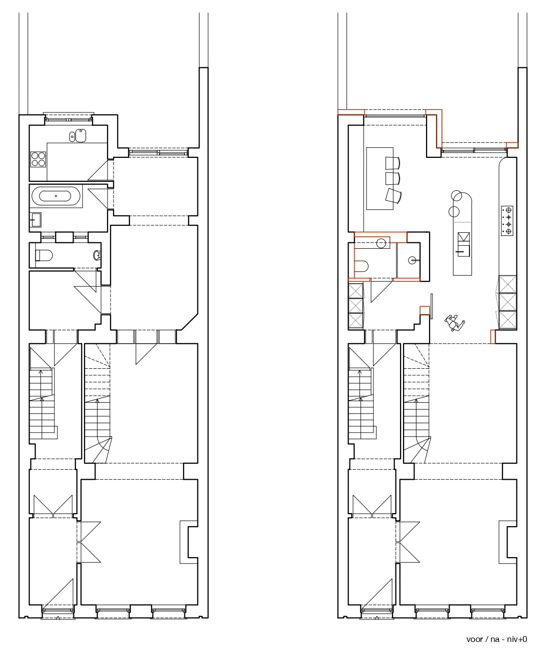
Renovatie van een herenhuis - Schaarbeek

↑